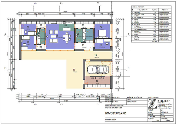
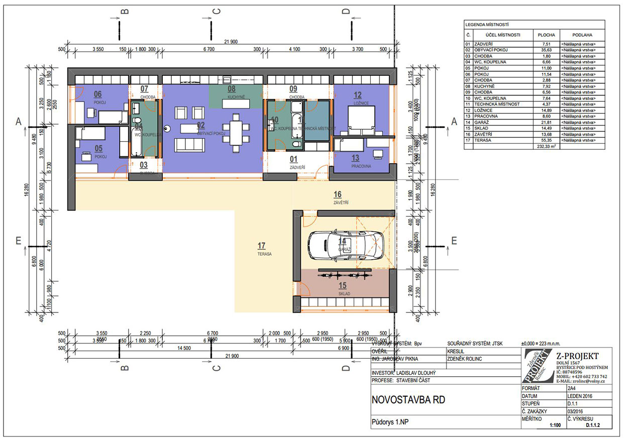
nové dvory (lipník nad bečvou)
<
>